Contacta

Solicitud enviada

55.974€

Dos De Mayor Ref. 950821

  • 1 m²
  • 9 hab.
  • 1 bañ.

Unifamiliar en venta en Milagro de 0 m²

Dispone9 habitaciones1 baño
Superficie1 m²55974 €/m²
Eficiencia energéticaEn tramite

NO COBRAMOS COMISIÓN DE INTERMEDIACIÓN AL COMPRADOR
¡Gran oportunidad!
Esta vivienda que consta de dos plantas cuenta con gran potencial de reforma y posibilidad de personalización, en la localidad de Milagro, provincia de Navarra, es la oportunidad perfecta para ti.
Ubicada en una zona tranquila y bien comunicada, esta casa ofrece amplios espacios, múltiples opciones de redistribución y una excelente relación calidad-precio, ideal tanto para residencia habitual como para inversión inmobiliaria.
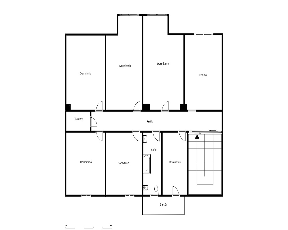
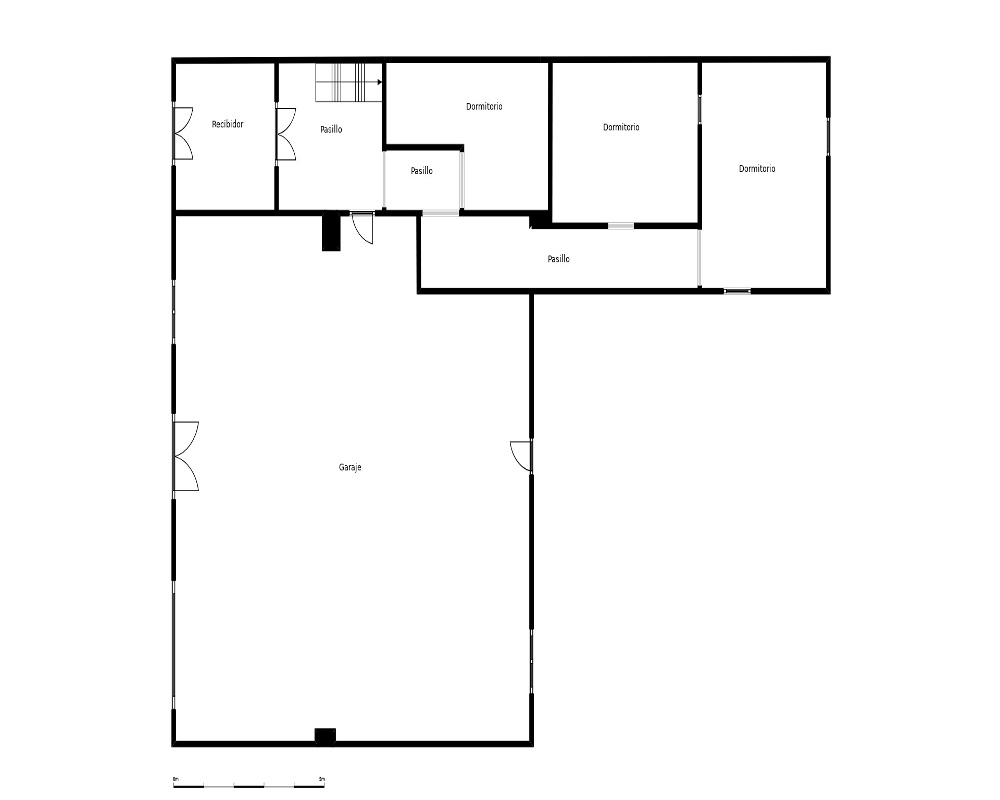
La vivienda cuenta con espacios amplios con gran entrada de luz natural y ofrece múltiples posibilidades de personalización según tus necesidades y gustos, distribuyéndose en un amplio salón-comedor, una cocina independiente, 9 dormitorios, uno de ellos con salida a un balcón que nos permiten disfrutar de las mejores zonas de la ciudad y una plaza de garaje.
Milagro es una localidad con un entorno natural privilegiado, una comunidad acogedora y una excelente conexión con ciudades cercanas como Tudela y Pamplona. Es una zona ideal para quienes buscan tranquilidad sin renunciar a la cercanía de todos los servicios esenciales.
Localizado en una zona residencial tranquila, perfecta para familias, parejas o como segunda residencia.
Cuenta a su alrededor con servicios cercanos, tales como supermercados, colegios, centros de salud, farmacias, bancos y comercios a pocos minutos.
Muy bien comunicación con accesos rápidos a carreteras principales y transporte público.
Ideal para disfrutar de la vida al aire libre, con rutas de senderismo y espacios verdes cercanos.

* Los precios de los inmuebles que se muestran en la página web, así como las reservas y las ventas de viviendas publicadas, pueden variar por motivos de actualización de los mismos con los proveedores durante un plazo de 48 a 72 horas.
La presente publicación tiene carácter meramente informativo, orientativo y no vinculante, por lo que no supone información contractual alguna, siendo su uso estrictamente comercial. Este anuncio puede contener errores, se muestra a título informativo de la información recibida, sin ser responsable la inmobiliaria de dichos errores.

Solicitud enviada

En breve el anunciante contactará contigo

Dos De Mayor, Milagro, Navarra

Viviendas relacionadas

Contacta con nosotros

Los datos de carácter personal que consten en la consulta serán tratados por PROYECTIZATE EN LA NUBE, S.L. e incorporados a la actividad de tratamiento CONTACTOS, cuya finalidad es atender tus solicitudes, peticiones o consultas recibidas desde la web, mediante correo electrónico o telefónico. Dar respuesta a tu solicitud y hacer un seguimiento posterior. La legitimación del tratamiento es tu consentimiento. Tus datos no serán cedidos a terceros. Tienes derecho a acceder, rectificar y suprimir tus datos, así como otros derechos como se explica en nuestra política de privacidad: https://www.adelopd.com/privacidad/proyectizate-en-la-nube-sl

Otros pisos en Milagro

Otras búsquedas