Contacta

Solicitud enviada

A consultar

LA QUINTANA Ref. 947586

    Otros en venta en Corrales De Buelna (los)

    Eficiencia energéticaEn tramite

    NO COBRAMOS COMISIÓN DE INTERMEDIACIÓN AL COMPRADOR
    Excelente oportunidad de adquirir en propiedad este suelo ubicado en la localidad de Los Corrales de Buelna, provincia de Cantabria. Dispone de buenos accesos y está bien comunicado. Con los siguientes datos:
    - Referencia catastral: 3891508VN1839S0001BP .
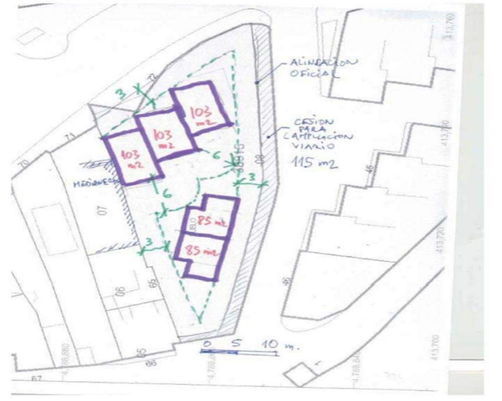
    - PROMOCIÓN INMOBILIARIA MÁS PROBABLE Se considera la promoción de viviendas adosadas en la propia promoción, y se permite adosar a la zona en que exista ya situación de adosamiento; por tanto se propone distribuir edificabilidad en tres viviendas adosadas dos pareadas que totalicen la edificabilidad.
    - Edificabilidad: 479 m2c sobre rasante, mientras que la dotación de aparcamiento materializa en la planta bajo rasante no computable, para unos 50 m2c por vivienda.
    - Conforme con el plano de calificación urbanística, se deberá realizar una cesion, y en el frente Este que se en 115 m2.
    Los Corrales de Buelna se encuentra en una zona de transición entre la costa y la montaña, lo que le confiere un paisaje variado y atractivo.
    Para acceder a Los Corrales de Buelna en coche, se puede tomar la Autovía del Cantábrico (A-8) y salir en la salida 229 hacia Los Corrales de Buelna. También se puede acceder por la carretera nacional N-634. A tan sólo 38 km de Santander.
    Por lo tanto la promoción a desarrollar disfrutará de un entorno tranquilo y natural, pero sin renunciar a todos los servicios, equipamientos y atractivos necesarios para una gran calidad de vida. Sus accesos, comunicaciones y transportes harán que tengas todo a tu alcance.
    No lo dudes, invertir en el suelo que te ofrecemos será una apuesta segura.

    * Los precios de los inmuebles que se muestran en la página web, así como las reservas y las ventas de viviendas publicadas, pueden variar por motivos de actualización de los mismos con los proveedores durante un plazo de 48 a 72 horas.
    La presente publicación tiene carácter meramente informativo, orientativo y no vinculante, por lo que no supone información contractual alguna, siendo su uso estrictamente comercial. Este anuncio puede contener errores, se muestra a título informativo de la información recibida, sin ser responsable la inmobiliaria de dichos errores.

    Solicitud enviada

    En breve el anunciante contactará contigo

    LA QUINTANA, Corrales de Buelna (Los), Cantabria

    Viviendas relacionadas

    Contacta con nosotros

    Los datos de carácter personal que consten en la consulta serán tratados por PROYECTIZATE EN LA NUBE, S.L. e incorporados a la actividad de tratamiento CONTACTOS, cuya finalidad es atender tus solicitudes, peticiones o consultas recibidas desde la web, mediante correo electrónico o telefónico. Dar respuesta a tu solicitud y hacer un seguimiento posterior. La legitimación del tratamiento es tu consentimiento. Tus datos no serán cedidos a terceros. Tienes derecho a acceder, rectificar y suprimir tus datos, así como otros derechos como se explica en nuestra política de privacidad: https://www.adelopd.com/privacidad/proyectizate-en-la-nube-sl

    Otros pisos en Corrales de Buelna

    Otras búsquedas