Contacta

Solicitud enviada

590.000€

Av Republica Argentina Ref. 954553

  • 190 m²
  • 5 hab.
  • 2 bañ.

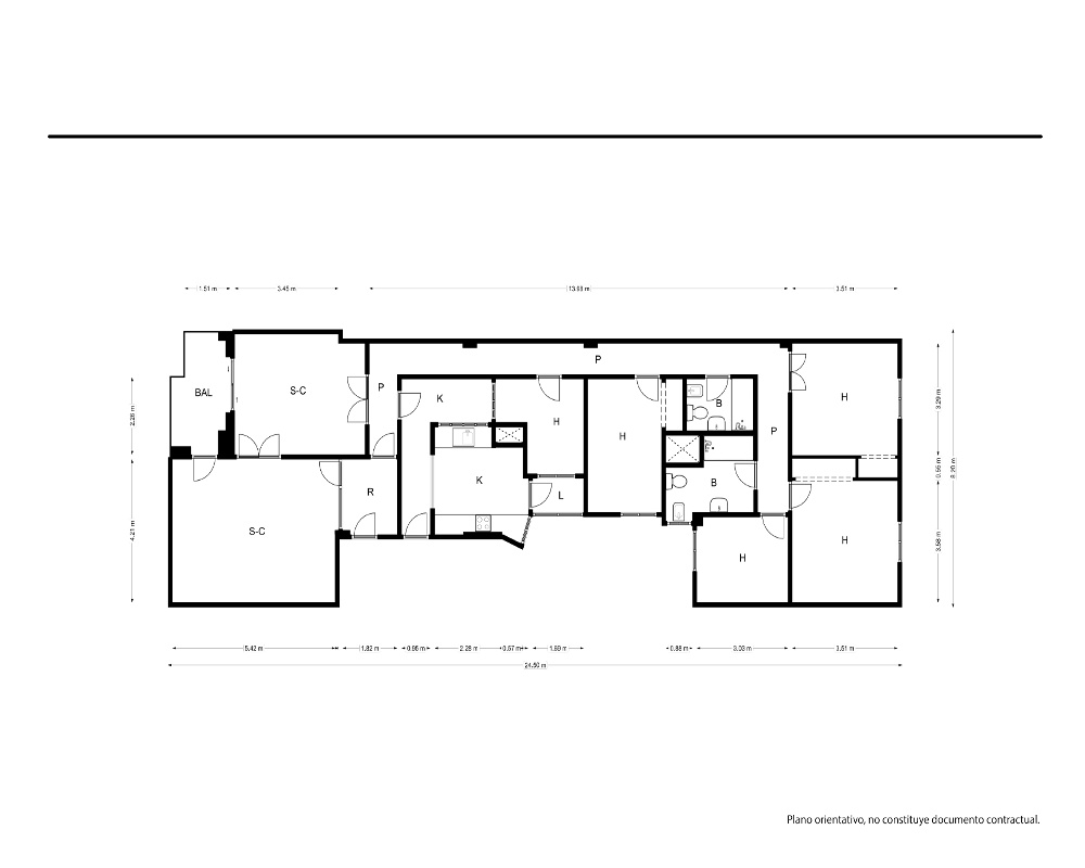
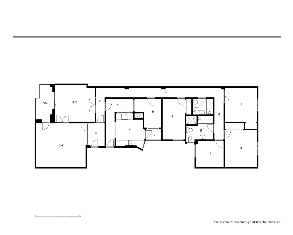
Piso en venta en Sevilla de 191 m²

Dispone5 habitaciones2 baños
Superficie190 m²3105 €/m²
Eficiencia energéticaEn tramite

VIVIENDA ALQUILADA, IDEAL PARA INVERSORES. Piso de 5 dormitorios en la ciudad de Sevilla. Situado en el barrio de Triana, próximo al Puente de San Telmo, esta luminosa vivienda de segunda mano completamente reformada y 191 m², ofrece muy buena conexión tanto por transporte público (autobús líneas 05, 40, metro línea L1), como privado y fácil acceso a las carreteras N-630 y SE-30. Su cercanía a colegios, organismos públicos, parques, centros deportivos, supermercados, cafeterías, centro de salud, farmacias y la Universidad de Sevilla, la convierten en una propuesta inteligente. La vivienda se encuentra en la octava planta de un edificio construido en 1966. Tiene una superficie de 191 m² distribuidos en amplio salón-comedor con 2 ambientes, 5 dormitorios (algunos de ellos con armarios empotrados), cocina amueblada con despensa y equipada con placa vitrocerámica, horno y campana extractora de humos, 2 baños amueblados y balcón. Información sobre la propiedad en alquiler: La vivienda se encuentra actualmente alquilada a precio de mercado, con inquilinos solventes que cuentan con empleo fijo y nómina, abonando la renta de manera puntual y regular. Detalles del contrato: Renta mensual actual: 1606,13€. Importante: Dado que el estado ocupacional de la propiedad, no es posible realizar visitas. Para más información, no dudes en consultarnos.

* Los precios de los inmuebles que se muestran en la página web, así como las reservas y las ventas de viviendas publicadas, pueden variar por motivos de actualización de los mismos con los proveedores durante un plazo de 48 a 72 horas.
La presente publicación tiene carácter meramente informativo, orientativo y no vinculante, por lo que no supone información contractual alguna, siendo su uso estrictamente comercial. Este anuncio puede contener errores, se muestra a título informativo de la información recibida, sin ser responsable la inmobiliaria de dichos errores.

Solicitud enviada

En breve el anunciante contactará contigo

Av Republica Argentina, Sevilla, Sevilla

Viviendas relacionadas

Contacta con nosotros

Los datos de carácter personal que consten en la consulta serán tratados por PROYECTIZATE EN LA NUBE, S.L. e incorporados a la actividad de tratamiento CONTACTOS, cuya finalidad es atender tus solicitudes, peticiones o consultas recibidas desde la web, mediante correo electrónico o telefónico. Dar respuesta a tu solicitud y hacer un seguimiento posterior. La legitimación del tratamiento es tu consentimiento. Tus datos no serán cedidos a terceros. Tienes derecho a acceder, rectificar y suprimir tus datos, así como otros derechos como se explica en nuestra política de privacidad: https://www.adelopd.com/privacidad/proyectizate-en-la-nube-sl

Otros pisos en Sevilla

Otras búsquedas