Contacta

Solicitud enviada

590.000€

POL LA DEHESILLA Ref. 946122

  • 4957 m²

Otros en venta en Trujillo de 4957 m²

Descuento de 65.000,00 € *

* Ya aplicado en el precio mostrado.
Precio antes del descuento: 655.000€

Superficie4957 m²119 €/m²
Eficiencia energéticaEn tramite

NO COBRAMOS COMISIÓN DE INTERMEDIACIÓN AL COMPRADOR
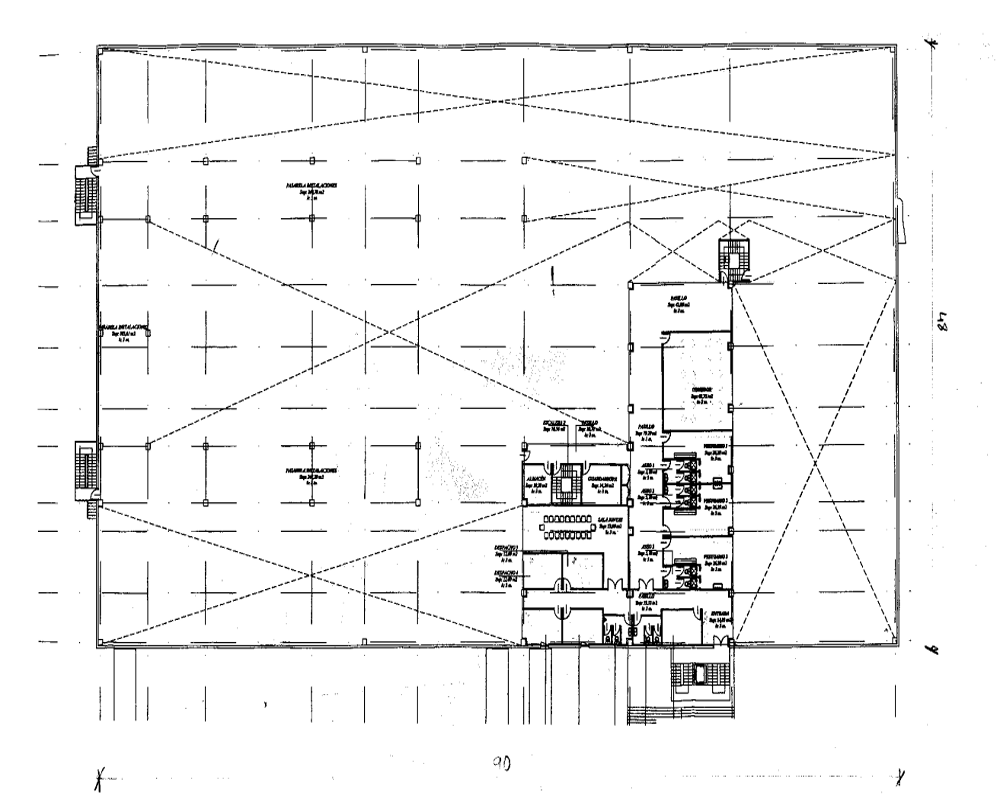
Excelente oportunidad de adquirir en propiedad esta nave industrial de estructura de hormigón panelada y puerta basculante con acceso peatonal ubicada en la localidad de Trujillo, Cáceres.
Gran oportunidad de adquirir esta nave industrial prefabricada, grandes espacios planos y diáfanos que deben poder acoger la producción de cualquier producto o servicio o actividad que se genere a su alrededor: equipamientos para fabricación, logística, almacenamiento, zonas de trabajo para operarios, entrada y salida de mercancías, oficinas, vestuarios, servicios, etc...
Excelente oportunidad de adquirir esta nave industrial en el Polígono Arroyo Caballo que cuenta con más de 30 actividades empresariales. Muy bien comunicado por carretera, se encuentra ubicado a tan solo 3km de Trujillo, en la Autovía de Extremadura, siendo una de las entradas principales a la ciudad accediendo por la A-5 Madrid-Lisboa, lo que facilita los desplazamientos a distintos puntos de la región o del país. Dispone de todos los servicios públicos o privados como pequeño comercio de proximidad, cafeterías, restaurantes y área de estacionamiento, alumbrado, calles asfaltadas, alcantarillado e infraestructuras actuales acordes a las necesidades.

* Los precios de los inmuebles que se muestran en la página web, así como las reservas y las ventas de viviendas publicadas, pueden variar por motivos de actualización de los mismos con los proveedores durante un plazo de 48 a 72 horas.
La presente publicación tiene carácter meramente informativo, orientativo y no vinculante, por lo que no supone información contractual alguna, siendo su uso estrictamente comercial. Este anuncio puede contener errores, se muestra a título informativo de la información recibida, sin ser responsable la inmobiliaria de dichos errores.

Solicitud enviada

En breve el anunciante contactará contigo

POL LA DEHESILLA, Trujillo, Caceres

Viviendas relacionadas

Contacta con nosotros

Los datos de carácter personal que consten en la consulta serán tratados por PROYECTIZATE EN LA NUBE, S.L. e incorporados a la actividad de tratamiento CONTACTOS, cuya finalidad es atender tus solicitudes, peticiones o consultas recibidas desde la web, mediante correo electrónico o telefónico. Dar respuesta a tu solicitud y hacer un seguimiento posterior. La legitimación del tratamiento es tu consentimiento. Tus datos no serán cedidos a terceros. Tienes derecho a acceder, rectificar y suprimir tus datos, así como otros derechos como se explica en nuestra política de privacidad: https://www.adelopd.com/privacidad/proyectizate-en-la-nube-sl

Otros pisos en Cáceres

Otras búsquedas