Contacta

Solicitud enviada

135.000€

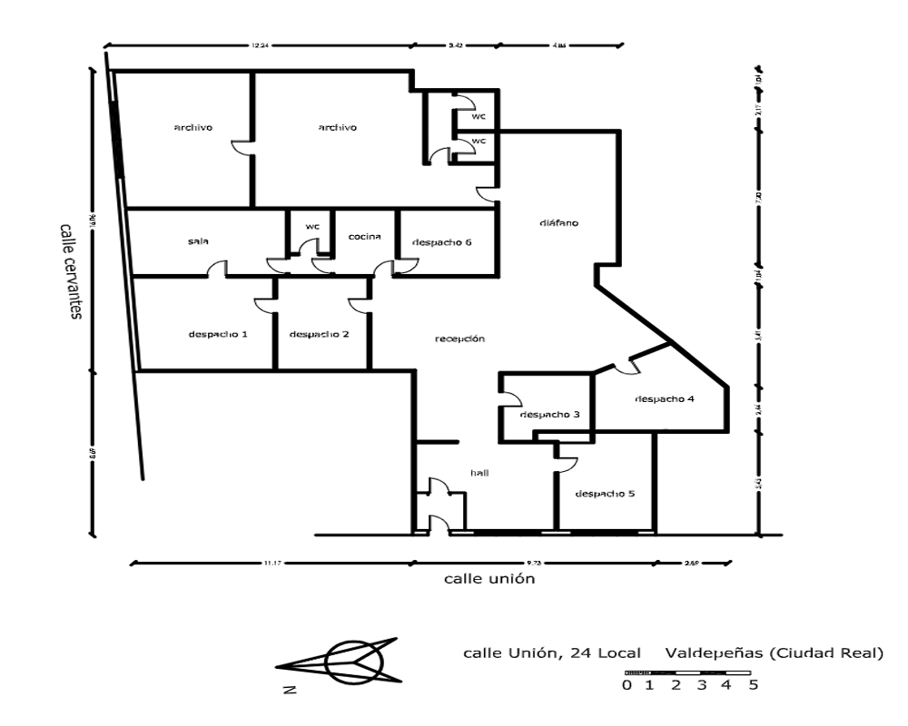
Union Ref. 941147

  • 439 m²

Otros en venta en Valdepeñas de 439 m²

Descuento de 5.000,00 € *

* Ya aplicado en el precio mostrado.
Precio antes del descuento: 140.000€

Superficie439 m²308 €/m²
Eficiencia energéticaEn tramite

NO COBRAMOS COMISIÓN DE INTERMEDIACIÓN AL COMPRADOR
Excelente oportunidad para comprar este local comercial ubicado en el municipio de Valdepeñas, provincia de Ciudad Real. Tiene una superficie construida de 439m² aproximadamente.
Se localiza cercano al centro de la población, por lo que dispone de todos los servicios necesarios tales como centros educativos, de ocio, supermercados, farmacias, entre otros.
En cuanto a las comunicaciones tiene fácil acceso por las carreteras CR-624 y CM-412, entre otras.
Comprar un local comercial en Valdepeñas ofrece ventajas como precios más asequibles que en grandes ciudades, alta rentabilidad por alquiler y una ubicación estratégica en el sur de Castilla-La Mancha. La ciudad cuenta con una sólida actividad vinícola y turística, lo que favorece el flujo de clientes. Además, su tamaño medio permite buena visibilidad y accesibilidad para negocios locales.
Valdepeñas ofrece servicios médicos con dos centros de salud y un hospital general. En educación, dispone de colegios públicos y un instituto. Su actividad comercial es dinámica, con más de 1.300 nuevas empresas en la última década y presencia de franquicias nacionales. Cuenta con dos líneas de autobuses urbanos eléctricos y conexiones por carretera que facilitan el acceso a la ciudad.
No dudes en ponerte en contacto con nosotros. Visita sin compromiso. Más información rellenando el formulario de contacto o por teléfono. Estaremos encantados de atenderte.

* Los precios de los inmuebles que se muestran en la página web, así como las reservas y las ventas de viviendas publicadas, pueden variar por motivos de actualización de los mismos con los proveedores durante un plazo de 48 a 72 horas.
La presente publicación tiene carácter meramente informativo, orientativo y no vinculante, por lo que no supone información contractual alguna, siendo su uso estrictamente comercial. Este anuncio puede contener errores, se muestra a título informativo de la información recibida, sin ser responsable la inmobiliaria de dichos errores.

Solicitud enviada

En breve el anunciante contactará contigo

Union, Valdepeñas, Ciudad Real

Viviendas relacionadas

Contacta con nosotros

Los datos de carácter personal que consten en la consulta serán tratados por PROYECTIZATE EN LA NUBE, S.L. e incorporados a la actividad de tratamiento CONTACTOS, cuya finalidad es atender tus solicitudes, peticiones o consultas recibidas desde la web, mediante correo electrónico o telefónico. Dar respuesta a tu solicitud y hacer un seguimiento posterior. La legitimación del tratamiento es tu consentimiento. Tus datos no serán cedidos a terceros. Tienes derecho a acceder, rectificar y suprimir tus datos, así como otros derechos como se explica en nuestra política de privacidad: https://www.adelopd.com/privacidad/proyectizate-en-la-nube-sl

Otros pisos en Ciudad Real

Otras búsquedas