Contacta

Solicitud enviada

372.000€

DOÑA JULIA Ref. 957056

  • 211 m²
  • 1 hab.
  • 2 bañ.

Otros en venta en Casares de 211 m²

Dispone1 habitación2 baños
Superficie211 m²1763 €/m²
Eficiencia energéticaEn tramite

NO COBRAMOS COMISIÓN DE INTERMEDIACIÓN AL COMPRADOR

Excelente oportunidad de inversión en una promoción de viviendas unifamiliares situada en el conjunto urbanístico del sector UR-15, Finca Doña Julia, en la localidad de Casares, provincia de Málaga.

Las viviendas disponen de certificado de fin de obra, lo que aporta seguridad jurídica y un importante valor añadido para compradores e inversores.

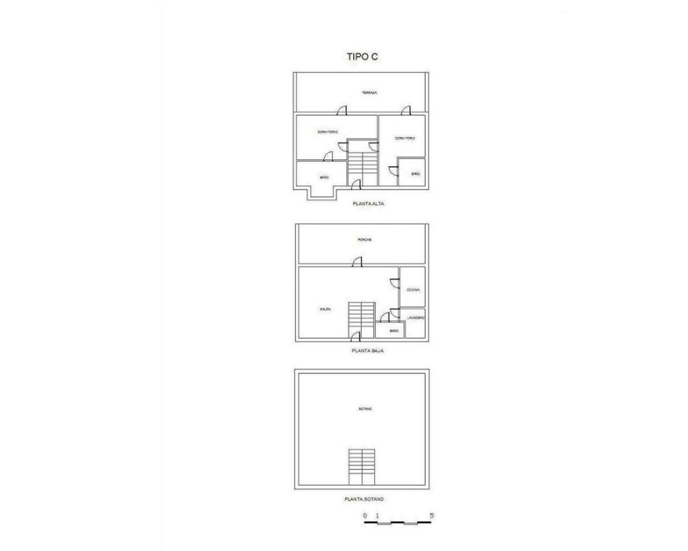
Se desarrollan en varias plantas sobre rasante más planta sótano baja. La configuración interior contempla una zona de día con salón-comedor y cocina, área de descanso con varios dormitorios y baños, además de espacios complementarios que permiten múltiples posibilidades de uso según las necesidades del futuro propietario.

La planta sótano constituye un espacio adicional de la vivienda, ideal como zona polivalente, almacén, bodega o área técnica. Dado su emplazamiento, no puede destinarse a garaje ni realizarse obra para tal fin, lo que debe tenerse en consideración en el planteamiento de uso.

Las viviendas cuentan además con agradables espacios exteriores de uso privativo, perfectos para diseñar zonas ajardinadas, terrazas o áreas de relax, aportando privacidad y calidad de vida en un entorno residencial consolidado.

Ubicadas en una zona estratégica dentro del término municipal de Casares, en un enclave residencial próximo a campos de golf, servicios y excelentes comunicaciones con la Costa del Sol, combinando tranquilidad, naturaleza y cercanía al mar.

* Los precios de los inmuebles que se muestran en la página web, así como las reservas y las ventas de viviendas publicadas, pueden variar por motivos de actualización de los mismos con los proveedores durante un plazo de 48 a 72 horas.
La presente publicación tiene carácter meramente informativo, orientativo y no vinculante, por lo que no supone información contractual alguna, siendo su uso estrictamente comercial. Este anuncio puede contener errores, se muestra a título informativo de la información recibida, sin ser responsable la inmobiliaria de dichos errores.

Solicitud enviada

En breve el anunciante contactará contigo

DOÑA JULIA, Casares, Malaga

Viviendas relacionadas

Contacta con nosotros

Los datos de carácter personal que consten en la consulta serán tratados por PROYECTIZATE EN LA NUBE, S.L. e incorporados a la actividad de tratamiento CONTACTOS, cuya finalidad es atender tus solicitudes, peticiones o consultas recibidas desde la web, mediante correo electrónico o telefónico. Dar respuesta a tu solicitud y hacer un seguimiento posterior. La legitimación del tratamiento es tu consentimiento. Tus datos no serán cedidos a terceros. Tienes derecho a acceder, rectificar y suprimir tus datos, así como otros derechos como se explica en nuestra política de privacidad: https://www.adelopd.com/privacidad/proyectizate-en-la-nube-sl

Otros pisos en Málaga

Otras búsquedas