Contacta

Solicitud enviada

335.000€

ORA Ref. 947398

    Otros en venta en Terrassa

    Descuento de 83.000,00 € *

    * Ya aplicado en el precio mostrado.
    Precio antes del descuento: 418.000€

    Eficiencia energéticaEn tramite

    NO COBRAMOS COMISIÓN DE INTERMEDIACIÓN AL COMPRADOR
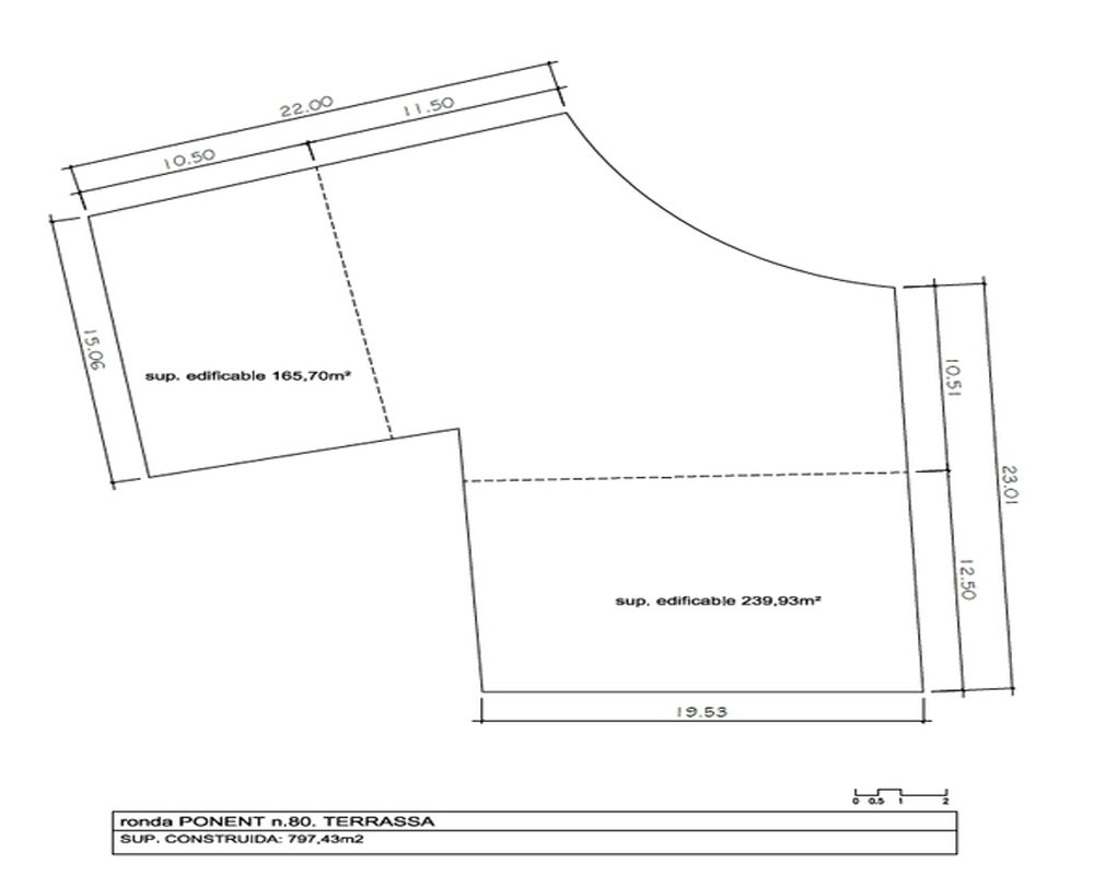
    ¡Tenemos una oportunidad que no puedes dejar pasar! Ponemos a la venta un terreno al oeste de la ciudad de Terrassa, en la provincia de Barcelona.
    Este suelo urbano residencial sin edificar, de forma poligonal, con topografía parcialmente llana, ubicado en una zona urbana y residencial, cuenta con dos entradas, frente al Poliesportiu Municipal La Maurina.
    El solar te brinda la oportunidad perfecta para materializar tus proyectos residenciales. Su uso característico es el residencial, cuenta con una amplia edificabilidad para llevar adelante la construcción de un complejo de viviendas.

    Se encuentra ubicado en una zona residencial a pocos minutos del centro de la ciudad, este suelo urbano ofrece un entorno tranquilo y natural, perfecto para desarrollar el proyecto residencial de tus sueños.

    Las muy buenas comunicaciones a la B-40, C-16, C-58 y N-150 te brindarán un acceso rápido y conveniente, conectándote con importantes vías de transporte y facilitando los desplazamientos hacia diferentes destinos. Si estás buscando el lugar perfecto para crear un proyecto residencial único, este suelo urbano en Terrassa es la respuesta.
    - Residencial (viviendas libres de primera residencia): 15ud. - 1.374,71m²
    - Plazas de garaje: 24ud. - 842,43m²
    - Alturas permitidas: PB+2PP (Se admite bajocubierta)
    - Referencia catastral: 6118477DG1061B0001XX

    * Los precios de los inmuebles que se muestran en la página web, así como las reservas y las ventas de viviendas publicadas, pueden variar por motivos de actualización de los mismos con los proveedores durante un plazo de 48 a 72 horas.
    La presente publicación tiene carácter meramente informativo, orientativo y no vinculante, por lo que no supone información contractual alguna, siendo su uso estrictamente comercial. Este anuncio puede contener errores, se muestra a título informativo de la información recibida, sin ser responsable la inmobiliaria de dichos errores.

    Solicitud enviada

    En breve el anunciante contactará contigo

    ORA, Terrassa, Barcelona

    Viviendas relacionadas

    Contacta con nosotros

    Los datos de carácter personal que consten en la consulta serán tratados por PROYECTIZATE EN LA NUBE, S.L. e incorporados a la actividad de tratamiento CONTACTOS, cuya finalidad es atender tus solicitudes, peticiones o consultas recibidas desde la web, mediante correo electrónico o telefónico. Dar respuesta a tu solicitud y hacer un seguimiento posterior. La legitimación del tratamiento es tu consentimiento. Tus datos no serán cedidos a terceros. Tienes derecho a acceder, rectificar y suprimir tus datos, así como otros derechos como se explica en nuestra política de privacidad: https://www.adelopd.com/privacidad/proyectizate-en-la-nube-sl

    Otros pisos en Barcelona

    Otras búsquedas